Esta vez os traigo un mini piso de 50m2 con una particularidad! Y es que además de estar distribuido en dos alturas tiene un dormitorio colgante para aprovechar el espacio al máximo!

Y es que últimamente los mini pisos son el recurso más recurrente para la gente joven, poder alquilar un sitio donde vivir sin que nos salga por un dineral es sinónimo de mini piso! Y las cifras aumentan estrepitosamente su hablamos de ciudades grandes como Barcelona o Madrid.
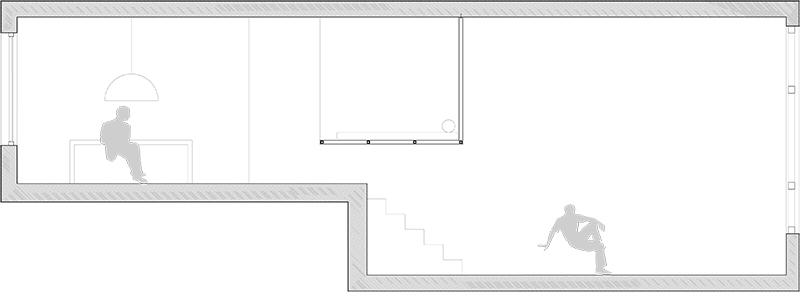
La propuesta que os traemos pertenece al despacho de arquitectos parisinos ecdm. Han conseguido una solución vistosa y original para integrar el dormitorio en unas dimensiones reducidas.

La doble altura ya existente en el piso permitió que el dormitorio pudiera volar por encima de la zona del salón y así aprovechar al máximo la altura disponible.





fuente ecdm
Que os ha parecido la propuesta de este lunes? Interesante la solución que han propuesto verdad?
Nos vemos en el próximo post!
Un saludo!


Deja un comentario